Ga naar inhoud

Te koop: woonhuis Terborgseweg 50 7064 AG Silvolde

Eggink Maalderink Garantiemakelaars
Neem contact met mij op

Onder bod

€ 445.000,- k.k.

bied op deze woning

Op het mooiste stukje van de Terborgseweg, met een vrije ligging aan de achterzijde, staat deze twee-onder-een kapwoning uit de geliefde jaren ’30. Wat je aan de voorzijde niet ziet, is de grote aanbouw met een keuken, bijkeuken en een circa 30 m2 grote garage. In totaal zijn er vier slaapkamers (mogelijk vijf) en de tuin met groot terras biedt veel privacy.

Iets verder in de straat stopt de bus, richting het station in Terborg (op 5 fietsminuten of 15 wandelminuten), waar je op de trein richting Arnhem en Winterswijk kunt stappen. Silvolde en Terborg hebben allebei diverse dorpsvoorzieningen waaronder supermarkten, horecagelegenheden, bloemisten, groente-/fruitwinkels, kappers, schoonheidssalons en bakkers. Verder is er een gezondheidscentrum met een huisarts, fysiotherapeut, pedicure en wijkzorg.

Indeling
Begane grond:
Wat direct opvalt aan deze woning is de prachtige entree, met een gemetselde boog en een donkergroene voordeur. Achter deze deur is de royale hal met paneeldeuren, een hoog plafond en de bordestrap naar de eerste verdieping. Rechts in de hal is de toiletruimte en, heel verrassend, achter een van de andere deuren is een werkkamer/kantoorruimte.
In de L-vormige woonkamer zie je dat de woning rond de jaren ’70 is verbouwd. Het hoge balkenplafond en de erker zijn behouden, en er valt veel licht naar binnen. Aan de voorzijde, bij de erker en de Barbas inbouw gashaard, is het zitgedeelte en aan de tuinzijde zie je een apart eetgedeelte. Waar vroeger de keuken was, staan nu de eettafel en een bureau. Tevens heb je hier de toegang tot de wijn-/provisiekelder.
Niet alleen de woonkamer, maar ook de keuken is heel ruim. Een maatje groter is de bijkeuken, met een deur naar de oprit en een deur naar de achtertuin. Hier staat een retro werkbank en is onder andere plek voor de wasmachine, droger, een tweede koelkast en een vriezer. Gezien de grootte is de bijkeuken ook geschikt als woonkeuken of kantoor/praktijk, met een eigen entree aan de voorzijde.

Souterrain:
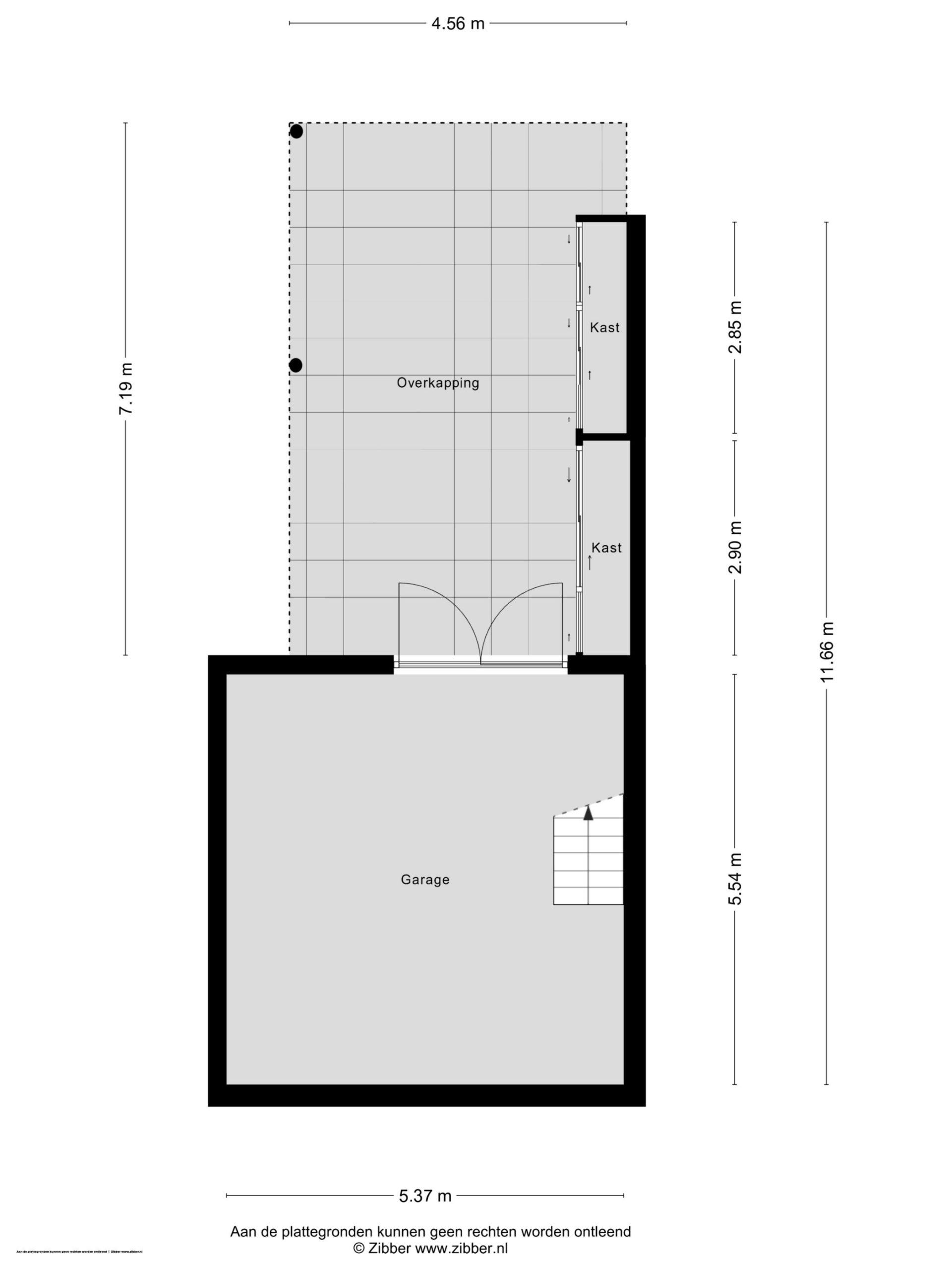
Vanuit de bijkeuken is een ruime garage (circa 29.8 m2) te bereiken, met dubbele deuren naar de carport. Dit is de perfecte ruimte voor een hobbyist, de auto- en motorliefhebber.

Eerste verdieping:
Volg de bordestrap naar de overloop, met grote ramen in de zijgevel waardoor de ruimte nog groter oogt. De paneeldeuren zijn behouden, net als de mooie trapbalustrade.
Er zijn drie ruime slaapkamers vanaf de overloop te bereiken, waarvan twee aan de achterzijde. Beide kamers hebben een wastafel en een van deze kamers geeft toegang tot een groot dakterras, boven de keuken en bijkeuken.
De ruime badkamer is ingedeeld met een douchecabine, een tweede douche met lage instap, een toilet, bidet en een wastafel. De tweede douche is geplaatst op de plek waar vroeger een ligbad stond.

Tweede verdieping:
Een vaste trap geeft toegang tot de zolderkamer, met een dakkapel aan de achterzijde. Deze grote ruimte biedt de mogelijkheid om een ruime (slaap)kamer te realiseren. Aan de achterzijde is nu ook al een slaapkamer, met een groot raam in het schuine dak.

Tuin:
Dit verrassend ruime huis beschikt over een groene voortuin en een zijtuin met een breed pad naar de bijkeuken. Ook de zijtuin is rijk beplant met bloemen en deels groenblijvende beplanting wat het geheel een verzorgde en natuurlijke uitstraling geeft.
Via de woonkamer en bijkeuken bereik je het ruime terras, dat met een trap toegang biedt tot de achtertuin. Hier vind je achterin een sfeervolle zitkuil, een beschutte plek omringd door planten, groen en een prachtige fruitboom, die in de zomermaanden voor een idyllisch plaatje zorgt én voor vers fruit.
Aan de achterzijde grenst de tuin aan de rustige Berkenlaan en de carport, met een hoog dak, biedt genoeg plek om een auto, caravan of een ander voertuig neer te zetten. En het uitzicht, vanuit de tuin en de woonkamer, is prachtig…

Bijzonderheden:
– Ruime aanbouw met de keuken en bijkeuken;
– Circa 30 m2 grote garage met een carport, te bereiken via de achtergelegen Berkenlaan;
– Vier (mogelijk vijf) slaapkamers;
– Mooi aangelegde tuin met veel groen;
– Verwarming en warm water via een HR-ketel;
– 10 zonnepanelen;
– Energielabel C;
– Bouwkundige keuring aanwezig.

  • 209 m2
  • 445 m2
  • 5

Kenmerken Terborgseweg 50

Overdracht

Vraagprijs€ 445.000,- k.k.
AanvaardingIn overleg

Oppervlaktes en inhoud

Perceel oppervlakte445 m2
Woonoppervlakte209 m2
Inhoud889 m3

Bouw

SoortEengezinswoning
BouwvormBestaande bouw
Bouwjaar1938
Dak typeSchilddak
IsolatievormenDakisolatie, Muurisolatie, Gedeeltelijk dubbelglas
EnergielabelC

Indeling

Aantal verdiepingen4
Aantal kamers7
Aantal slaapkamers5
Aantal badkamers1

Maandlasten

Ligging Terborgseweg 50

Voorzieningen

Centraal gelegen informatie over de buurt

Aantal inwoners

In de gemeente

39.568

Vergelijkbaar woningaanbod